請更新您的瀏覽器

您使用的瀏覽器版本較舊,已不再受支援。建議您更新瀏覽器版本,以獲得最佳使用體驗。

宅品味

【案例】電視牆不做、改以中島為核心,機能和收納都放大!31坪質感宅明亮開闊

100室內設計

更新於 2024年04月08日15:55 • 發布於 2024年04月08日11:00

【房屋資訊】

房屋類型:單層

居住成員:大人2人、小孩1人

預算:200萬(不含廚具、空調)

裝潢時長:三個半月

屋主購入這間31坪的房子,委託紅殼設計Alice、Irene設計師進行客變與裝潢,為了型塑明亮簡約的空間氛圍,全室以白色、木質為主調,公區則用淺灰色無縫地坪帶出質感,再於局部加入米色特殊漆做跳色點綴,提升整體層次和溫度。

設計重點

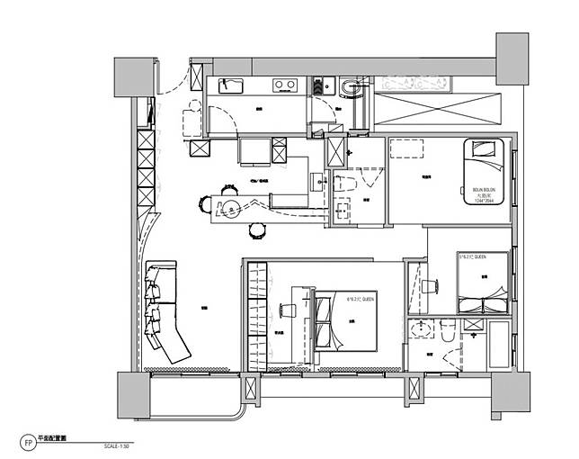
因僅為兩大一小居住,將原本的四房改為三房+一更衣室的格局配置,藉此擴充收納機能,而為符合全家人的生活習慣,改用投影機取代電視,並以餐廳為核心設計,增設中島、餐桌、電器櫃,滿足輕食料理與用餐需求。

▲設計後平面圖
▲立面圖

玄關設計

為了修飾入門大樑,以弧形天花過渡到客餐廳區,既讓視覺變得更柔和,也有動線引導的作用,另外,也靠牆規劃了整面的收納櫃,讓玄關區的機能更完善。

▲礦物塗料牆在暖黃燈光映照下,氛圍更顯舒適溫馨。

▲打造屏風為入門視線做個緩衝,選用玻璃材質,則讓採光能維持穿透。

客廳設計

有別於多數家庭以客廳為重心設計,屋主選擇捨棄電視,改以投影機滿足視聽需求,因此,不做電視牆,讓客廳維持簡約、清爽的空間畫面。設計師也打造了一座延伸至窗邊的雙層弧形牆,作為沙發背牆,搭配圓弧沙發,讓整體視覺更和諧、柔美。

▲弧形背牆讓公領域串聯一起,有放大空間感的效果。

餐廳設計

在已有內廚房的情況下,規劃一座結合餐桌的中島吧台,側邊的L型檯面上,也增加水槽、下櫃,不僅方便屋主料理輕食、小酌和用餐,收納機能更是大大滿足,而設計師也精準拿捏比例,將屋主指定的敲敲門冰箱融入餐廳,完善整個餐廳區的機能性。

▲餐桌吊燈選用丹麥ASTEP Model 2065。

▲中島採雕塑手法,利用兩個連續的大弧線,將聚焦視線,同時以翻花技術控制木紋的對花,強化視覺方向。

▲餐桌平時也能作為辦公桌使用。

▲大理石餐桌的天然紋理,提升整體的層次質感。

▲牆面輕薄的鐵件層板,賦予置物、展示功能,比起設置上櫃,較不易造成壓迫感。

主臥&更衣室設計

於床頭打造隔牆,劃分出主臥和更衣室,隔牆則保留了一扇小窗,讓兩場域既不會互相打擾,還保有互動性,同時也讓柔紗簾連綿不斷,保持完整的窗戶立面。此外,設計師也將更衣室結合書房,設置了書桌、層板,讓屋主可以在此辦公、閱讀。

▲牆面做了圓弧收邊,提升安全性和柔化動線。

After

「這是一個以8個圓弧打造出的家,圓弧中,有前後相倚的,有左右連綿的,有獨自垂立的,宛如華爾滋般交替舒展在這個家中。好的設計要執行成功,還須經過一連串的計算,將所有材料厚度、尺寸計算入內,且要放入變數,反覆推敲 ,才能剛剛好的圖文相符。」___紅殼設計

延伸閱讀:更衣室必備「機能型中島」,讓收納力爆棚!

延伸閱讀:櫃子、層架不做滿?沙發背牆「這樣做」,客廳收納竟翻1倍!

查看原始文章

更多宅品味相關文章

01

別再花大錢裝潢客廳了!設計師默認「這空間」才是最舒適好住的核心

100室內設計
02

江南不敗神話下的畸形變奏:韓國「智能一居」爆發 卻成房市扭曲的遮羞布?

商傳媒
03

韓政府擬擴權設「房產政策司」 市場驚:重回「管不動就管死」的老路?

商傳媒
04

房市冷冬竟有活水?韓國果川新案認購開紅盤 2.7:1 競爭率寫下首購族生存紀實

商傳媒
05

「3040」首購族霸榜!韓國房市驚現「訂閱潮」 明星學區宅成 AI 時代最強剛需

商傳媒
Loading...
Loading...
Loading...
Loading...
Loading...
Loading...
Loading...
Loading...
Loading...
Loading...
Loading...
Loading...
Loading...
Loading...
Loading...
Loading...
Loading...
Loading...
Loading...
Loading...
Loading...
Loading...
Loading...
Loading...
Loading...
Loading...
Loading...
Loading...
Loading...
Loading...
Loading...
Loading...
Loading...
Loading...
Loading...
Loading...
Loading...