โปรดอัพเดตเบราว์เซอร์

เบราว์เซอร์ที่คุณใช้เป็นเวอร์ชันเก่าซึ่งไม่สามารถใช้บริการของเราได้ เราขอแนะนำให้อัพเดตเบราว์เซอร์เพื่อการใช้งานที่ดีที่สุด

‘3×30 Introverted House’ Minimal Space, Maximum Living บ้านที่มากกว่าที่อยู่อาศัย

Homeday

อัพเดต 09 ธ.ค. 2567 เวลา 07.26 น. • เผยแพร่ 26 พ.ย. 2567 เวลา 23.42 น.
‘3×30 Introverted House’ Minimal Space, Maximum Living บ้านที่มากกว่าที่อยู่อาศัย

“บ้านแนวตั้งสำหรับคนรักความสงบ แนวคิดการออกแบบที่ตอบโจทย์การอยู่อาศัยในเมือง”

ท่ามกลางความวุ่นวายของเมืองใหญ่ การออกแบบบ้านที่เป็นมากกว่าที่พักอาศัย แต่เป็นพื้นที่แห่งความสงบและการพักผ่อนอย่างแท้จริง คือความท้าทายของสถาปนิกยุคใหม่ บ้าน 3×30 ในเมืองหวุงเต่า ประเทศเวียดนาม คือตัวอย่างที่น่าสนใจของการออกแบบที่ตอบโจทย์การอยู่อาศัยบนพื้นที่จำกัด

แนวคิดการออกแบบ บ้านหลังนี้ตั้งอยู่บนที่ดินแคบยาว หันหน้าไปทางถนนทิศตะวันตกเฉียงใต้ สถาปนิกได้ออกแบบโดยคำนึงถึงความต้องการของเจ้าของบ้านที่ต้องการพื้นที่ส่วนตัวที่เรียบง่าย แตกต่างจากชีวิตในเมืองที่วุ่นวาย พร้อมรับมือกับสภาพอากาศร้อนชื้นแบบเขตร้อน

การจัดการพื้นที่อย่างชาญฉลาด แทนที่จะใช้แบบแปลนทาวน์เฮ้าส์ทั่วไปที่มีทางเดินยาว สถาปนิกเลือกแบ่งพื้นที่ตามแนวยาวของบ้าน ใช้พื้นที่ส่วนกลางเป็นเส้นทางเชื่อมต่อไปยังพื้นที่ส่วนตัวต่างๆ โดยจัดวางพื้นที่นั่งเล่นและครัวไว้กลางบ้าน ซึ่งเป็นจุดที่ใช้งานบ่อยที่สุด ใกล้กับทางเข้าหลักและช่องแสง ช่วยสร้างการปฏิสัมพันธ์ระหว่างสมาชิกครอบครัว

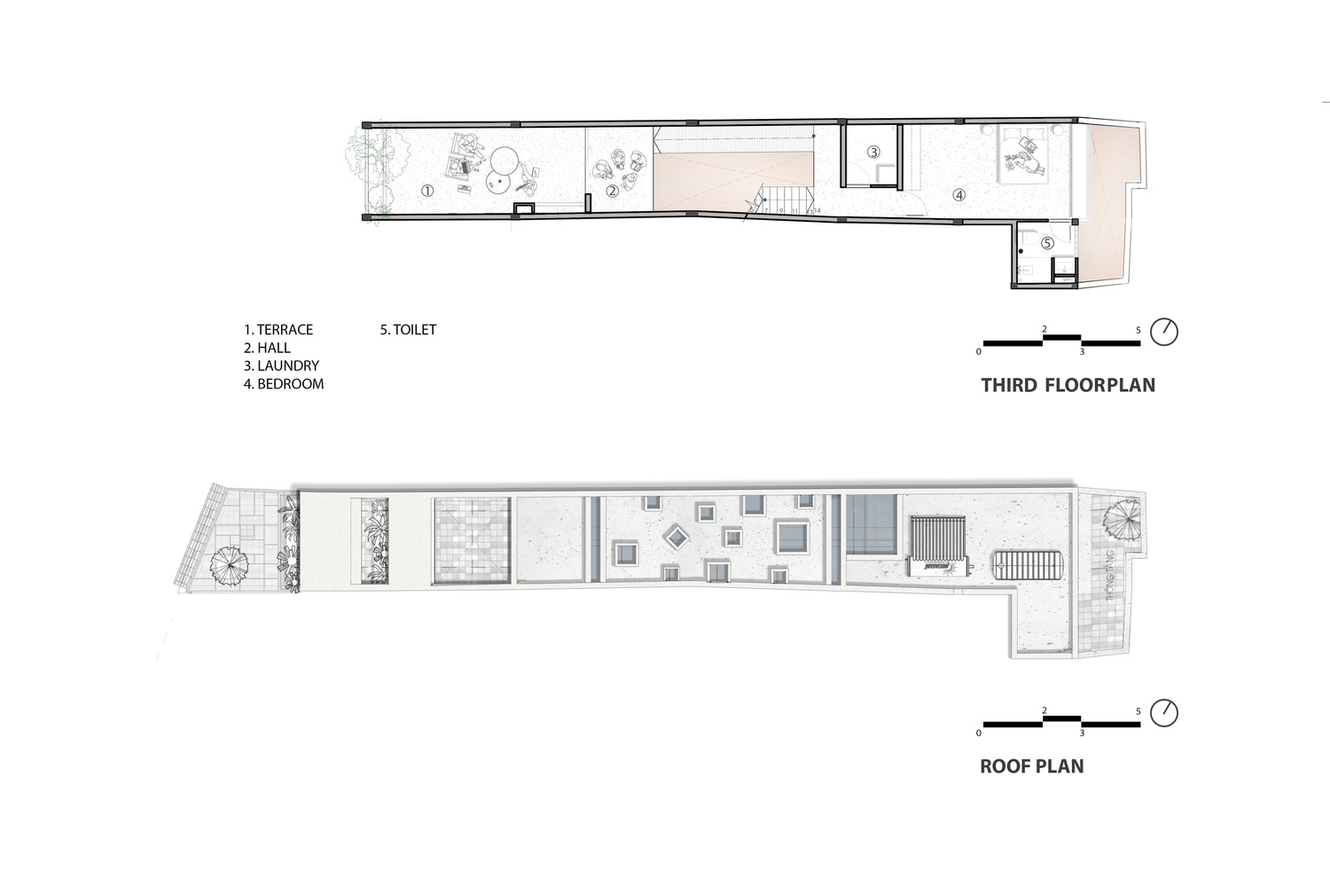
นวัตกรรมการออกแบบเพื่อการอยู่อาศัย การออกแบบแบบแยกระดับพื้นและการลดขนาดพื้นที่ในชั้นบน ไม่เพียงช่วยเพิ่มการเชื่อมต่อในแนวดิ่ง แต่ยังเปิดโอกาสให้แสงธรรมชาติส่องถึงพื้นที่ด้านใน พื้นที่ส่วนกลางถูกออกแบบให้มีความสูง 1.3 เท่าของห้องส่วนตัว เพื่อความโปร่งสบายและการระบายอากาศที่ดี

การจัดการแสงและการระบายอากาศ ช่องแสงกลางบ้านถูกออกแบบให้แบ่งเป็นส่วนย่อย เพื่อให้แสงสว่างและระบายอากาศได้ดี แต่ลดการสะสมความร้อนจากกระจก การใช้แผ่นเหล็กเจาะรูในส่วนทางสัญจรยังช่วยให้แสงธรรมชาติกระจายตัวได้ดียิ่งขึ้น

การออกแบบภายนอกที่เป็นเอกลักษณ์ หลังคาคอนกรีตที่ลาดเอียงจากชั้นบนลงมาถึงชั้นสอง พร้อมช่องระบายอากาศ สร้างความเรียบง่ายแต่โดดเด่น การจัดวางต้นไม้เป็นชั้นกันชนช่วยป้องกันความร้อนและเพิ่มความเป็นส่วนตัว

พื้นที่พิเศษบนชั้นดาดฟ้า ระเบียงชั้นสามถูกออกแบบให้เป็นพื้นที่กึ่งปิด ช่วยลดความร้อน เสียงรบกวน และวิวที่ไม่พึงประสงค์ แต่ยังเปิดโล่งสู่ท้องฟ้า กลายเป็นพื้นที่อเนกประสงค์สำหรับการพบปะสังสรรค์ การทำโยคะ หรือนั่งสมาธิ

บ้าน 3×30 แสดงให้เห็นว่าข้อจำกัดของพื้นที่ไม่ใช่อุปสรรคในการสร้างบ้านที่มีคุณภาพ การออกแบบที่คำนึงถึงการใช้งานจริง สภาพแวดล้อม และความต้องการของผู้อยู่อาศัย สามารถสร้างพื้นที่ที่มีทั้งประโยชน์ใช้สอยและความงาม เป็นมากกว่าที่พักอาศัย แต่เป็นพื้นที่แห่งการพักผ่อนที่แท้จริงท่ามกลางความวุ่นวายของเมือง

Architects: DMArchitects
Photographs: Paul Phan
Location: Vũng Tàu, Vietnam

‘3×30 Introverted House’ Minimal Space, Maximum Living บ้านที่มากกว่าที่อยู่อาศัย

‘3×30 Introverted House’ Minimal Space, Maximum Living บ้านที่มากกว่าที่อยู่อาศัย

‘3×30 Introverted House’ Minimal Space, Maximum Living บ้านที่มากกว่าที่อยู่อาศัย

‘3×30 Introverted House’ Minimal Space, Maximum Living บ้านที่มากกว่าที่อยู่อาศัย

‘3×30 Introverted House’ Minimal Space, Maximum Living บ้านที่มากกว่าที่อยู่อาศัย

‘3×30 Introverted House’ Minimal Space, Maximum Living บ้านที่มากกว่าที่อยู่อาศัย

‘3×30 Introverted House’ Minimal Space, Maximum Living บ้านที่มากกว่าที่อยู่อาศัย

‘3×30 Introverted House’ Minimal Space, Maximum Living บ้านที่มากกว่าที่อยู่อาศัย

‘3×30 Introverted House’ Minimal Space, Maximum Living บ้านที่มากกว่าที่อยู่อาศัย

‘3×30 Introverted House’ Minimal Space, Maximum Living บ้านที่มากกว่าที่อยู่อาศัย

‘3×30 Introverted House’ Minimal Space, Maximum Living บ้านที่มากกว่าที่อยู่อาศัย

‘3×30 Introverted House’ Minimal Space, Maximum Living บ้านที่มากกว่าที่อยู่อาศัย

‘3×30 Introverted House’ Minimal Space, Maximum Living บ้านที่มากกว่าที่อยู่อาศัย

‘3×30 Introverted House’ Minimal Space, Maximum Living บ้านที่มากกว่าที่อยู่อาศัย

‘3×30 Introverted House’ Minimal Space, Maximum Living บ้านที่มากกว่าที่อยู่อาศัย

‘3×30 Introverted House’ Minimal Space, Maximum Living บ้านที่มากกว่าที่อยู่อาศัย

‘3×30 Introverted House’ Minimal Space, Maximum Living บ้านที่มากกว่าที่อยู่อาศัย

‘3×30 Introverted House’ Minimal Space, Maximum Living บ้านที่มากกว่าที่อยู่อาศัย

‘3×30 Introverted House’ Minimal Space, Maximum Living บ้านที่มากกว่าที่อยู่อาศัย

‘3×30 Introverted House’ Minimal Space, Maximum Living บ้านที่มากกว่าที่อยู่อาศัย

‘3×30 Introverted House’ Minimal Space, Maximum Living บ้านที่มากกว่าที่อยู่อาศัย

‘3×30 Introverted House’ Minimal Space, Maximum Living บ้านที่มากกว่าที่อยู่อาศัย

‘3×30 Introverted House’ Minimal Space, Maximum Living บ้านที่มากกว่าที่อยู่อาศัย

‘3×30 Introverted House’ Minimal Space, Maximum Living บ้านที่มากกว่าที่อยู่อาศัย

‘3×30 Introverted House’ Minimal Space, Maximum Living บ้านที่มากกว่าที่อยู่อาศัย

‘3×30 Introverted House’ Minimal Space, Maximum Living บ้านที่มากกว่าที่อยู่อาศัย

‘3×30 Introverted House’ Minimal Space, Maximum Living บ้านที่มากกว่าที่อยู่อาศัย

‘3×30 Introverted House’ Minimal Space, Maximum Living บ้านที่มากกว่าที่อยู่อาศัย

‘3×30 Introverted House’ Minimal Space, Maximum Living บ้านที่มากกว่าที่อยู่อาศัย

‘3×30 Introverted House’ Minimal Space, Maximum Living บ้านที่มากกว่าที่อยู่อาศัย

‘3×30 Introverted House’ Minimal Space, Maximum Living บ้านที่มากกว่าที่อยู่อาศัย

#Homeday #Homedayth #ไอเดียแต่งบ้าน #แต่งบ้าน #แบบบ้าน #ออกแบบบ้าน #สถาปัตยกรรม #บ้านแนวตั้ง #มินิมอล #SmartHome #ModernHouse #IntrovertHouse #ArchitectureDesign #VietnamArchitecture #SmartLiving #HomeDesign #DesignForLiving

ดูข่าวต้นฉบับ
Loading...
Loading...
Loading...
Loading...
Loading...
Loading...
Loading...
Loading...
Loading...
Loading...
Loading...
Loading...
Loading...
Loading...
Loading...
Loading...
Loading...
Loading...
Loading...
Loading...
Loading...
Loading...
Loading...
Loading...
Loading...
Loading...
Loading...
Loading...
Loading...
Loading...
Loading...
Loading...
Loading...
Loading...
Loading...
Loading...
Loading...
Loading...