โปรดอัพเดตเบราว์เซอร์

เบราว์เซอร์ที่คุณใช้เป็นเวอร์ชันเก่าซึ่งไม่สามารถใช้บริการของเราได้ เราขอแนะนำให้อัพเดตเบราว์เซอร์เพื่อการใช้งานที่ดีที่สุด

‘UMONG HOUSE’ เสน่ห์บ้านเก่าในซอยวัดอุโมงค์ที่ผสานดีไซน์ร่วมสมัย

Homeday

อัพเดต 10 ม.ค. 2568 เวลา 06.09 น. • เผยแพร่ 10 ม.ค. 2568 เวลา 06.06 น.
‘umong House’ เสน่ห์บ้านเก่าในซอยวัดอุโมงค์ที่ผสานดีไซน์ร่วมสมัย

UMONG HOUSE: เนรมิตบ้านในซอยวัดอุโมงค์ให้สวยปิ๊ง ด้วยแสงธรรมชาติและดีไซน์สุดเก๋
ย่านเก่าเชียงใหม่มีเสน่ห์อะไรนะ? วันนี้พาไปดูการเปลี่ยนโฉมบ้านในซอยวัดอุโมงค์ที่ผสมผสานความคลาสสิกกับความร่วมสมัยได้อย่างลงตัว จนกลายเป็น UMONG HOUSE บ้านสวยที่เต็มไปด้วยแสงธรรมชาติและความอบอุ่น

จากบ้านเก่าในซอยวัดอุโมงค์
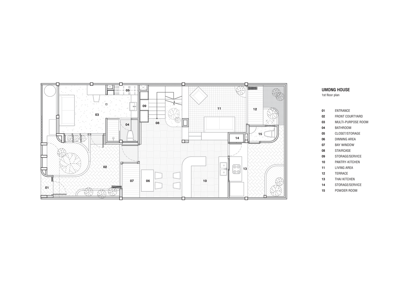
นี่คือเรื่องราวของทาวน์เฮาส์ 2 ชั้นที่ซ่อนตัวอยู่ในซอยวัดอุโมงค์ ใกล้มหาวิทยาลัยเชียงใหม่ แม้จะผ่านกาลเวลามานาน แต่ยังคงเสน่ห์ด้วยโครงสร้างไม้ผสมคอนกรีตแบบดั้งเดิม และหลังคาทรงเอียงที่สร้างแสงสวยๆ ทีม Studio Mai Mai จึงรับหน้าที่เนรมิตให้กลายเป็นบ้านที่ทั้งสวยและน่าอยู่

เสกความพิเศษด้วยแสง
รู้มั้ยว่าอะไรทำให้บ้านหลังนี้โดดเด่น? ก็สกายไลท์ไง! สถาปนิกเลยจัดการเปิดพื้นที่ชั้น 2 สร้างเพดานสูงโล่ง ให้แสงธรรมชาติส่องลงมาถึงพื้นที่นั่งเล่นชั้นล่าง ตื่นมาก็รู้สึกสดชื่น ได้บรรยากาศบ้านเชียงใหม่แท้ๆ แถมยังจัดสรรพื้นที่ให้มีห้องนอน 2 ห้องได้ลงตัว

ดีไซน์ที่ลงตัวกับบ้านย่านเก่า
นอกจากแสงสวยๆ แล้ว ยังเพิ่มความนุ่มนวลด้วยเส้นโค้งมนๆ แทนเส้นตรงแข็งๆ ตั้งแต่รั้วหน้าบ้านยันซุ้มประตู ใช้โทนขาวอบอุ่นผสานวัสดุธรรมชาติสไตล์บ้านเชียงใหม่ดั้งเดิม ทั้งอิฐ กระเบื้อง และไม้ที่มีลวดลายสวย บันไดข้างสกายไลท์ก็ทำเรียบๆ ไม่บังแสง แต่เติมสีฟ้าเป็นจุดเด่นให้ดูทันสมัย

ความพิเศษของ UMONG HOUSE
จากบ้านเก่าในซอยวัดอุโมงค์ สู่บ้านสวยที่ผสานความคลาสสิกและร่วมสมัยได้อย่างลงตัว ด้วยการเปิดพื้นที่รับแสงธรรมชาติผ่านสกายไลท์สุดปัง เพิ่มความนุ่มนวลด้วยเส้นโค้งที่ลงตัว และการเลือกใช้วัสดุธรรมชาติที่สื่อถึงเสน่ห์บ้านเชียงใหม่ ทำให้ UMONG HOUSE เป็นตัวอย่างที่ดีของการรีโนเวทที่รักษาเอกลักษณ์ดั้งเดิมไว้ พร้อมเพิ่มความทันสมัยและฟังก์ชันการใช้งานที่ตอบโจทย์การอยู่อาศัยในปัจจุบัน

Architects: Studio Mai Mai
Photographs: FANGBakii , Apinine Thassanopas
Location: Chiang Mai, Thailand

‘umong House’ เสน่ห์บ้านเก่าในซอยวัดอุโมงค์ที่ผสานดีไซน์ร่วมสมัย

‘umong House’ เสน่ห์บ้านเก่าในซอยวัดอุโมงค์ที่ผสานดีไซน์ร่วมสมัย

‘umong House’ เสน่ห์บ้านเก่าในซอยวัดอุโมงค์ที่ผสานดีไซน์ร่วมสมัย

‘umong House’ เสน่ห์บ้านเก่าในซอยวัดอุโมงค์ที่ผสานดีไซน์ร่วมสมัย

‘umong House’ เสน่ห์บ้านเก่าในซอยวัดอุโมงค์ที่ผสานดีไซน์ร่วมสมัย

‘umong House’ เสน่ห์บ้านเก่าในซอยวัดอุโมงค์ที่ผสานดีไซน์ร่วมสมัย

‘umong House’ เสน่ห์บ้านเก่าในซอยวัดอุโมงค์ที่ผสานดีไซน์ร่วมสมัย

‘umong House’ เสน่ห์บ้านเก่าในซอยวัดอุโมงค์ที่ผสานดีไซน์ร่วมสมัย

‘umong House’ เสน่ห์บ้านเก่าในซอยวัดอุโมงค์ที่ผสานดีไซน์ร่วมสมัย

‘umong House’ เสน่ห์บ้านเก่าในซอยวัดอุโมงค์ที่ผสานดีไซน์ร่วมสมัย

‘umong House’ เสน่ห์บ้านเก่าในซอยวัดอุโมงค์ที่ผสานดีไซน์ร่วมสมัย

‘umong House’ เสน่ห์บ้านเก่าในซอยวัดอุโมงค์ที่ผสานดีไซน์ร่วมสมัย

‘umong House’ เสน่ห์บ้านเก่าในซอยวัดอุโมงค์ที่ผสานดีไซน์ร่วมสมัย

‘umong House’ เสน่ห์บ้านเก่าในซอยวัดอุโมงค์ที่ผสานดีไซน์ร่วมสมัย

‘umong House’ เสน่ห์บ้านเก่าในซอยวัดอุโมงค์ที่ผสานดีไซน์ร่วมสมัย

‘umong House’ เสน่ห์บ้านเก่าในซอยวัดอุโมงค์ที่ผสานดีไซน์ร่วมสมัย

‘umong House’ เสน่ห์บ้านเก่าในซอยวัดอุโมงค์ที่ผสานดีไซน์ร่วมสมัย

‘umong House’ เสน่ห์บ้านเก่าในซอยวัดอุโมงค์ที่ผสานดีไซน์ร่วมสมัย

‘umong House’ เสน่ห์บ้านเก่าในซอยวัดอุโมงค์ที่ผสานดีไซน์ร่วมสมัย

‘umong House’ เสน่ห์บ้านเก่าในซอยวัดอุโมงค์ที่ผสานดีไซน์ร่วมสมัย

‘umong House’ เสน่ห์บ้านเก่าในซอยวัดอุโมงค์ที่ผสานดีไซน์ร่วมสมัย

‘umong House’ เสน่ห์บ้านเก่าในซอยวัดอุโมงค์ที่ผสานดีไซน์ร่วมสมัย

‘umong House’ เสน่ห์บ้านเก่าในซอยวัดอุโมงค์ที่ผสานดีไซน์ร่วมสมัย

‘umong House’ เสน่ห์บ้านเก่าในซอยวัดอุโมงค์ที่ผสานดีไซน์ร่วมสมัย

‘umong House’ เสน่ห์บ้านเก่าในซอยวัดอุโมงค์ที่ผสานดีไซน์ร่วมสมัย

‘umong House’ เสน่ห์บ้านเก่าในซอยวัดอุโมงค์ที่ผสานดีไซน์ร่วมสมัย

‘umong House’ เสน่ห์บ้านเก่าในซอยวัดอุโมงค์ที่ผสานดีไซน์ร่วมสมัย

#ไอเดียแต่งบ้าน #ไอเดียบ้าน #แบบบ้าน #UMONGHOUSE #รีโนเวทบ้าน #รีโนเวททาวน์เฮ้าส์ #รีโนเวททาวน์โฮม #สถาปัตยกรรม #homedecor #renovation #architecture #StudioMaiMai

ดูข่าวต้นฉบับ
Loading...
Loading...
Loading...
Loading...
Loading...
Loading...
Loading...
Loading...
Loading...
Loading...
Loading...
Loading...
Loading...
Loading...
Loading...
Loading...
Loading...
Loading...
Loading...
Loading...
Loading...
Loading...
Loading...
Loading...
Loading...
Loading...
Loading...
Loading...
Loading...
Loading...
Loading...
Loading...
Loading...
Loading...
Loading...
Loading...
Loading...
Loading...