โปรดอัพเดตเบราว์เซอร์

เบราว์เซอร์ที่คุณใช้เป็นเวอร์ชันเก่าซึ่งไม่สามารถใช้บริการของเราได้ เราขอแนะนำให้อัพเดตเบราว์เซอร์เพื่อการใช้งานที่ดีที่สุด

“Flow House Living: บ้านเย็นสบาย สไตล์ชีวิตคนรุ่นใหม่”

Homeday

อัพเดต 06 ม.ค. 2568 เวลา 04.40 น. • เผยแพร่ 06 ม.ค. 2568 เวลา 04.40 น.
“flow House Living: บ้านเย็นสบาย สไตล์ชีวิตคนรุ่นใหม่”

สวัสดีคนรักบ้าน! วันนี้ Homeday พาทุกคนมาส่องไอเดียบ้านสุดชิคที่จะเปลี่ยนมุมมองของคุณเกี่ยวกับบ้านชั้นเดียวไปตลอดกาล กับ Flow House Living โปรเจกต์สุดปังที่พิสูจน์ให้เห็นว่าบ้านเย็นสบายในเมืองร้อนเป็นเรื่องที่เป็นไปได้!

ท่ามกลางย่านที่อยู่อาศัยในจังหวัดเชียงใหม่ มีบ้านหลังหนึ่งที่โดดเด่นด้วยแนวคิดการออกแบบที่แตกต่าง “Flow House” บ้านชั้นเดียวที่ถูกสร้างขึ้นเพื่อตอบโจทย์การอยู่อาศัยในเมืองร้อนอย่างชาญฉลาด

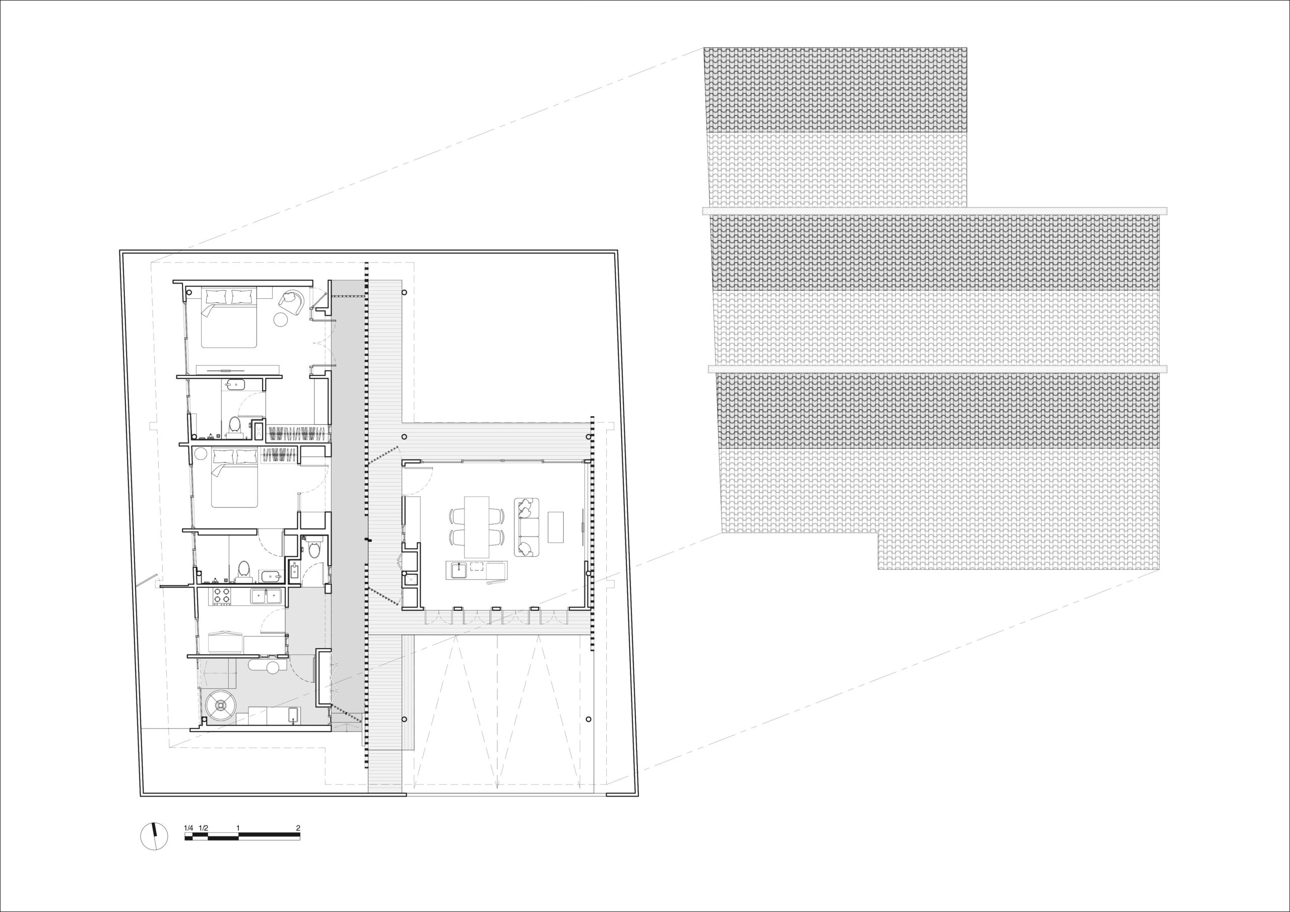
บ้านหลังนี้เกิดจากโจทย์ที่ท้าทาย: การสร้างบ้านที่เย็นสบายในสภาพอากาศร้อนของเชียงใหม่ โดยใช้การระบายอากาศธรรมชาติเป็นหลัก พร้อมกับรักษาความเป็นส่วนตัวให้ผู้อยู่อาศัย ด้วยพื้นที่ 2 ห้องนอน 3 ห้องน้ำ พื้นที่ส่วนกลาง และครัว ทุกส่วนถูกออกแบบให้เชื่อมต่อกันอย่างลงตัว

หัวใจสำคัญของบ้านหลังนี้อยู่ที่ระบบหมุนเวียนอากาศแบบข้าม (Cross-ventilation) ที่ช่วยให้ทุกห้องได้รับลมธรรมชาติอย่างทั่วถึง ทีมสถาปนิกได้ออกแบบพื้นที่กึ่งกลางแจ้งตรงกลางบ้าน ทำหน้าที่เป็นเสมือนปอดของบ้าน ช่วยให้อากาศไหลเวียนได้ดี

ความพิเศษอีกอย่างคือผนังคอนกรีตบล็อกโปร่งแสง ที่นอกจากจะสวยงามแล้ว ยังทำหน้าที่กรองแสงและให้ลมพัดผ่านได้ สร้างบรรยากาศที่ร่มรื่นและเป็นส่วนตัว การจัดวางพื้นที่ถูกออกแบบให้มีความเป็นส่วนตัวเพิ่มขึ้นตามลำดับ จากด้านหน้าไปยังด้านหลังบ้าน

Flow House ไม่เพียงแต่เป็นบ้านที่สวยงาม แต่ยังเป็นตัวอย่างที่ดีของการออกแบบที่ใส่ใจสิ่งแวดล้อม ประหยัดพลังงาน และตอบโจทย์การอยู่อาศัยในเมืองร้อนได้อย่างลงตัว พิสูจน์ให้เห็นว่าบ้านที่ดีไม่จำเป็นต้องใหญ่โต แต่ต้องออกแบบอย่างชาญฉลาด เข้าใจธรรมชาติ และใส่ใจผู้อยู่อาศัยอย่างแท้จริง

บ้านหลังนี้จึงเป็นแรงบันดาลใจให้กับคนรุ่นใหม่ที่กำลังมองหาที่อยู่อาศัยที่ตอบโจทย์ทั้งการใช้ชีวิตและความยั่งยืน แสดงให้เห็นว่าการออกแบบที่ดีสามารถสร้างคุณภาพชีวิตที่ดีให้กับผู้อยู่อาศัยได้ โดยไม่ต้องสิ้นเปลืองทรัพยากรมากเกินไป

Architects: Out & About Architects
Photographs: DOF Sky | Ground
Location: Chiang Mai, Thailand

“flow House Living: บ้านเย็นสบาย สไตล์ชีวิตคนรุ่นใหม่”

“flow House Living: บ้านเย็นสบาย สไตล์ชีวิตคนรุ่นใหม่”

“flow House Living: บ้านเย็นสบาย สไตล์ชีวิตคนรุ่นใหม่”

“flow House Living: บ้านเย็นสบาย สไตล์ชีวิตคนรุ่นใหม่”

“flow House Living: บ้านเย็นสบาย สไตล์ชีวิตคนรุ่นใหม่”

“flow House Living: บ้านเย็นสบาย สไตล์ชีวิตคนรุ่นใหม่”

“flow House Living: บ้านเย็นสบาย สไตล์ชีวิตคนรุ่นใหม่”

“flow House Living: บ้านเย็นสบาย สไตล์ชีวิตคนรุ่นใหม่”

“flow House Living: บ้านเย็นสบาย สไตล์ชีวิตคนรุ่นใหม่”

“flow House Living: บ้านเย็นสบาย สไตล์ชีวิตคนรุ่นใหม่”

“flow House Living: บ้านเย็นสบาย สไตล์ชีวิตคนรุ่นใหม่”

“flow House Living: บ้านเย็นสบาย สไตล์ชีวิตคนรุ่นใหม่”

“flow House Living: บ้านเย็นสบาย สไตล์ชีวิตคนรุ่นใหม่”

“flow House Living: บ้านเย็นสบาย สไตล์ชีวิตคนรุ่นใหม่”

“flow House Living: บ้านเย็นสบาย สไตล์ชีวิตคนรุ่นใหม่”

“flow House Living: บ้านเย็นสบาย สไตล์ชีวิตคนรุ่นใหม่”

“flow House Living: บ้านเย็นสบาย สไตล์ชีวิตคนรุ่นใหม่”

“flow House Living: บ้านเย็นสบาย สไตล์ชีวิตคนรุ่นใหม่”

“flow House Living: บ้านเย็นสบาย สไตล์ชีวิตคนรุ่นใหม่”

“flow House Living: บ้านเย็นสบาย สไตล์ชีวิตคนรุ่นใหม่”

“flow House Living: บ้านเย็นสบาย สไตล์ชีวิตคนรุ่นใหม่”

“flow House Living: บ้านเย็นสบาย สไตล์ชีวิตคนรุ่นใหม่”

“flow House Living: บ้านเย็นสบาย สไตล์ชีวิตคนรุ่นใหม่”

“flow House Living: บ้านเย็นสบาย สไตล์ชีวิตคนรุ่นใหม่”

“flow House Living: บ้านเย็นสบาย สไตล์ชีวิตคนรุ่นใหม่”

“flow House Living: บ้านเย็นสบาย สไตล์ชีวิตคนรุ่นใหม่”

“flow House Living: บ้านเย็นสบาย สไตล์ชีวิตคนรุ่นใหม่”

“flow House Living: บ้านเย็นสบาย สไตล์ชีวิตคนรุ่นใหม่”

“flow House Living: บ้านเย็นสบาย สไตล์ชีวิตคนรุ่นใหม่”

“flow House Living: บ้านเย็นสบาย สไตล์ชีวิตคนรุ่นใหม่”

“flow House Living: บ้านเย็นสบาย สไตล์ชีวิตคนรุ่นใหม่”

“flow House Living: บ้านเย็นสบาย สไตล์ชีวิตคนรุ่นใหม่”

“flow House Living: บ้านเย็นสบาย สไตล์ชีวิตคนรุ่นใหม่”

“flow House Living: บ้านเย็นสบาย สไตล์ชีวิตคนรุ่นใหม่”

“flow House Living: บ้านเย็นสบาย สไตล์ชีวิตคนรุ่นใหม่”

“flow House Living: บ้านเย็นสบาย สไตล์ชีวิตคนรุ่นใหม่”

“flow House Living: บ้านเย็นสบาย สไตล์ชีวิตคนรุ่นใหม่”

“flow House Living: บ้านเย็นสบาย สไตล์ชีวิตคนรุ่นใหม่”

#Homeday #Homedayth #ไอเดียแต่งบ้าน #แบบบ้าน #บ้านเดี่ยว #บ้านชั้นเดียว #บ้านเย็น #บ้านประหยัดพลังงาน #วิถีคูล #FlowHouse #OutAndAboutArchitects #Architects #ChiangMai #Thailand

ดูข่าวต้นฉบับ
Loading...
Loading...
Loading...
Loading...
Loading...
Loading...
Loading...
Loading...
Loading...
Loading...
Loading...
Loading...
Loading...
Loading...
Loading...
Loading...
Loading...
Loading...
Loading...
Loading...
Loading...
Loading...
Loading...
Loading...
Loading...
Loading...
Loading...
Loading...
Loading...
Loading...
Loading...
Loading...
Loading...
Loading...
Loading...
Loading...
Loading...
Loading...