โปรดอัพเดตเบราว์เซอร์

เบราว์เซอร์ที่คุณใช้เป็นเวอร์ชันเก่าซึ่งไม่สามารถใช้บริการของเราได้ เราขอแนะนำให้อัพเดตเบราว์เซอร์เพื่อการใช้งานที่ดีที่สุด

Back in Black! แปลงโฉมโรงงานเก่าสู่ ‘Black Office’ สุดคูล ไอเดียเจ๋งเพื่อโลกที่ยั่งยืน

Homeday

อัพเดต 09 ธ.ค. 2567 เวลา 07.43 น. • เผยแพร่ 05 ธ.ค. 2567 เวลา 00.39 น.
Back In Black! แปลงโฉมโรงงานเก่าสู่ ‘black Office’ สุดคูล ไอเดียเจ๋งเพื่อโลกที่ยั่งยืน

ในยุคที่ทุกคนพูดถึงความยั่งยืน น้อยครั้งที่เราจะได้เห็นโครงการที่ตอบโจทย์ได้อย่างครบถ้วนเช่นนี้ เมื่อบริษัทป้ายโฆษณาชั้นนำตัดสินใจแปลงโฉมโรงงานโลหะเก่าให้กลายเป็นสำนักงานใหญ่แห่งใหม่ พวกเขาไม่เพียงสร้างพื้นที่ทำงาน แต่ยังสร้างแรงบันดาลใจให้กับวงการออกแบบ

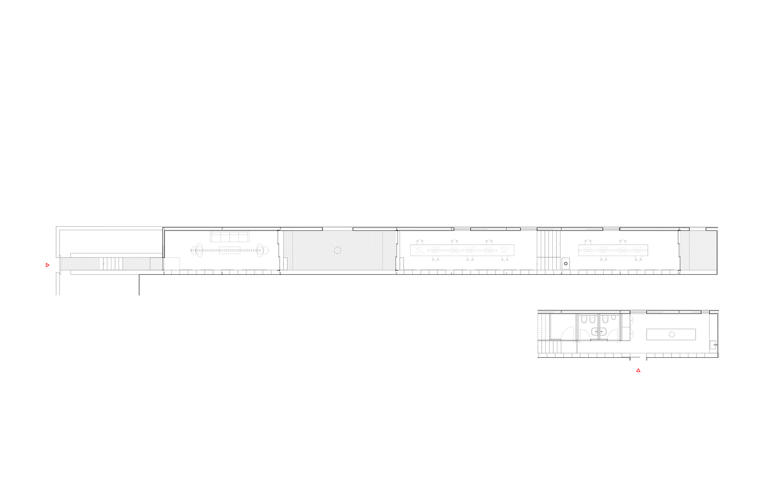
สิ่งที่น่าทึ่งที่สุดคือการผสมผสานความเก่าและใหม่เข้าด้วยกัน โดยแบ่งการพัฒนาเป็นสองส่วน ส่วนแรกคือการปรับปรุงโกดังเดิม จัดสรรพื้นที่ใหม่อย่างชาญฉลาด ทั้งพื้นที่เทคนิค การผลิต และพื้นที่พักผ่อน พร้อมเพิ่มระเบียงโลหะที่ทั้งสวยงามและใช้งานได้จริง

ส่วนที่สองที่ถือว่าเป็นไฮไลท์ของโครงการคือการสร้างอาคารสำนักงานใหม่ในพื้นที่แคบยาว 3 x 50 เมตร ที่น่าสนใจคือการออกแบบลานโล่งตลอดแนวอาคาร ซึ่งไม่เพียงช่วยประหยัดพลังงาน แต่ยังสร้างบรรยากาศการทำงานที่สดชื่น เป็นธรรมชาติ

นวัตกรรมการก่อสร้างของโครงการนี้ถือว่าล้ำสมัยมาก การใช้ระบบชิ้นส่วนสำเร็จรูปที่ประกอบง่าย ไม่ต้องใช้กาวหรือสกรู และสามารถรีไซเคิลได้ ถือเป็นการปฏิวัติวงการก่อสร้าง และที่น่าประทับใจไปกว่านั้นคือทั้งหมดนี้ดำเนินการโดยช่างฝีมือเพียงสองคน

การตกแต่งที่เลือกใช้วัสดุธรรมชาติอย่างไม้ ผสานกับการทาสีดำด้านภายนอก สร้างความรู้สึกอบอุ่นแต่ทันสมัย และระบบควบคุมอุณหภูมิแบบธรรมชาติที่ใช้ทั้งเตาผิงไม้ในฤดูหนาวและการระบายอากาศธรรมชาติในฤดูร้อน แสดงให้เห็นว่าเราสามารถสร้างอาคารที่เป็นมิตรกับสิ่งแวดล้อมได้โดยไม่ต้องพึ่งพาเทคโนโลยีราคาแพง

โครงการนี้ไม่ใช่แค่การปรับปรุงอาคารธรรมดา แต่เป็นการพลิกโฉมแนวคิดการออกแบบสำนักงานยุคใหม่ ที่พิสูจน์ให้เห็นว่าความยั่งยืนไม่ใช่เรื่องไกลตัว และการออกแบบที่ดีสามารถสร้างความสมดุลระหว่างความสวยงาม ประโยชน์ใช้สอย และความรับผิดชอบต่อสิ่งแวดล้อมได้อย่างลงตัว นับเป็นต้นแบบที่น่าจับตามองสำหรับวงการออกแบบและก่อสร้างในอนาคต

Architects: Branco del Río, Arquitectos (João Branco, Paula del Río)
Photographs: do mal o menos, Frederico Martinho
Location: Coimbra, Portugal

Back In Black! แปลงโฉมโรงงานเก่าสู่ ‘black Office’ สุดคูล ไอเดียเจ๋งเพื่อโลกที่ยั่งยืน

Back In Black! แปลงโฉมโรงงานเก่าสู่ ‘black Office’ สุดคูล ไอเดียเจ๋งเพื่อโลกที่ยั่งยืน

Back In Black! แปลงโฉมโรงงานเก่าสู่ ‘black Office’ สุดคูล ไอเดียเจ๋งเพื่อโลกที่ยั่งยืน

Back In Black! แปลงโฉมโรงงานเก่าสู่ ‘black Office’ สุดคูล ไอเดียเจ๋งเพื่อโลกที่ยั่งยืน

Back In Black! แปลงโฉมโรงงานเก่าสู่ ‘black Office’ สุดคูล ไอเดียเจ๋งเพื่อโลกที่ยั่งยืน

Back In Black! แปลงโฉมโรงงานเก่าสู่ ‘black Office’ สุดคูล ไอเดียเจ๋งเพื่อโลกที่ยั่งยืน

Back In Black! แปลงโฉมโรงงานเก่าสู่ ‘black Office’ สุดคูล ไอเดียเจ๋งเพื่อโลกที่ยั่งยืน

Back In Black! แปลงโฉมโรงงานเก่าสู่ ‘black Office’ สุดคูล ไอเดียเจ๋งเพื่อโลกที่ยั่งยืน

Back In Black! แปลงโฉมโรงงานเก่าสู่ ‘black Office’ สุดคูล ไอเดียเจ๋งเพื่อโลกที่ยั่งยืน

Back In Black! แปลงโฉมโรงงานเก่าสู่ ‘black Office’ สุดคูล ไอเดียเจ๋งเพื่อโลกที่ยั่งยืน

Back In Black! แปลงโฉมโรงงานเก่าสู่ ‘black Office’ สุดคูล ไอเดียเจ๋งเพื่อโลกที่ยั่งยืน

Back In Black! แปลงโฉมโรงงานเก่าสู่ ‘black Office’ สุดคูล ไอเดียเจ๋งเพื่อโลกที่ยั่งยืน

Back In Black! แปลงโฉมโรงงานเก่าสู่ ‘black Office’ สุดคูล ไอเดียเจ๋งเพื่อโลกที่ยั่งยืน

Back In Black! แปลงโฉมโรงงานเก่าสู่ ‘black Office’ สุดคูล ไอเดียเจ๋งเพื่อโลกที่ยั่งยืน

Back In Black! แปลงโฉมโรงงานเก่าสู่ ‘black Office’ สุดคูล ไอเดียเจ๋งเพื่อโลกที่ยั่งยืน

Back In Black! แปลงโฉมโรงงานเก่าสู่ ‘black Office’ สุดคูล ไอเดียเจ๋งเพื่อโลกที่ยั่งยืน

Back In Black! แปลงโฉมโรงงานเก่าสู่ ‘black Office’ สุดคูล ไอเดียเจ๋งเพื่อโลกที่ยั่งยืน

#Homeday #Homedayth #ไอเดียแต่งบ้าน #แบบออฟฟิศ #รีโนเวท #ออฟฟิศ #BackinBlack #BlackOffice #Escritorios #Billboard #Office #BrancodelRío #Arquitectos

ดูข่าวต้นฉบับ
Loading...
Loading...
Loading...
Loading...
Loading...
Loading...
Loading...
Loading...
Loading...
Loading...
Loading...
Loading...
Loading...
Loading...
Loading...
Loading...
Loading...
Loading...
Loading...
Loading...
Loading...
Loading...
Loading...
Loading...
Loading...
Loading...
Loading...
Loading...
Loading...
Loading...
Loading...
Loading...
Loading...
Loading...
Loading...
Loading...
Loading...
Loading...