請更新您的瀏覽器

您使用的瀏覽器版本較舊,已不再受支援。建議您更新瀏覽器版本,以獲得最佳使用體驗。

宅品味

跳台、綠植、貓步道,開箱我的三人三貓20坪日系木質小宅

100室內設計

更新於 2022年10月03日15:55 • 發布於 2022年10月03日04:00

一、買房換屋緣起

我和三隻貓咪買房前一直過著租屋的生活,隨著結婚後買房資金慢慢到位,便開始看房,找尋採光、地點都符合我們需求的房子,最後購入了這間20坪的3房小宅,開始期待我們一家的新生活~

二、找尋設計師的過程

我很喜歡綠色,在網路搜尋資料時恰巧瀏覽到一畝綠設計的作品,當時就深深被他們為每個案件特調的綠所吸引,加上又有不少規劃貓宅的經驗,洽談後覺得設計師很親切、好溝通,也仔細聽我們的需求並給予實際的建議,於是便決定將我們的家交給他們設計。

三、我們的裝修需求

以前租房的時候,收納總是不夠,3隻貓咪的活動空間也很少,現在兩大一小+三貓一起住,和先生討論後整理出以下幾點裝修需求:

格局

除了主臥室外,還需要一間我的工作室與小孩房,因此希望保留原始的三房格局。另外我們習慣邊吃飯邊看電視,所以客餐廳合一的規劃我們是可以接受的~

收納

我衣服較多,需要有大衣櫃,先生則是有彈吉他、騎腳踏車的興趣,希望能將這些大型物品規劃擺放的位置。

風格

喜歡簡約、帶有木元素的綠色調空間

給貓咪的設計

1.能讓貓咪自由穿梭家中每個空間的跳台與貓步道

2.需要特別規劃貓砂盆的位置

3.希望跳台、貓道等機關都好清潔,沒有死角

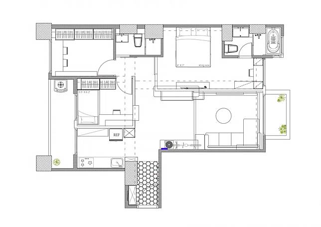
四、平面圖與3D渲染圖

平面規劃依照我們的需求保留三房格局,並配置好收納與各類家具的位置。

為了讓貓咪們能有自己的小天地,設計師以貓咪旅館為中心,發想出了環繞客廳,並連接主臥與次臥的貓道動線。

給大家看看我們家的3D渲染圖,模擬出來貓道的規劃超級可愛,我們一看就好喜歡,另外也幫先生的吉他和腳踏車設計好收納的地方。

五、裝修過程

一開始的拆除工程,雖然不動格局,但設計師規劃了以貓咪旅館為中心衍生的貓道動線,好讓貓咪們能在家中自由走動,需要局部挖空牆面做為牠們的貓步道~

接著是木作進場,所有貓跳台都是請木工師傅打造的,雖然不便宜,但為了讓貓貓們能幸福的生活,我可以忍!(握拳)

木作、油漆都差不多好了,很快的來到收尾、細清的階段,新家即將完工啦!

六、完工美圖分享

玄關設計

玄關挑選了帶有仿舊感的磁磚,多色混拼起來的效果很美,而且好清理又耐磨!

客廳設計

電視牆的顏色是設計師為我們特調的哈密瓜綠,只有我們家有!淡淡的綠色搭上木元素打造的貓跳台,雖然坪數小,但整體空間氛圍依然清爽無壓~

先生的腳踏車、吉他都固定在牆上有各自的小窩,同時也成為家中的端景~

我們喜歡在家追劇、看電影,規劃時有提到希望客廳能有個小冰箱,讓我們能不用離開沙發直接拿飲料,同時也在上方平台設計了無線充電的設備,讓手機能直接在這充電,超級方便!

給貓咪的設計

電視牆後放就是主臥室,左上和右上方的牆面都做了開孔,搭配貓步道,讓貓咪們能自由穿梭在家中每一處~另外貓砂盆的位置規劃在電視牆旁邊,讓我們家三貓能舒適的如廁,整體材質也非常好清理,上面還有貓腳印的設計細節,好喜歡呀!

不少朋友問我貓步道會不會清不到內部?但其實設計師幫我們在每一段步道都規劃了可以打開的小機關,需要清潔時只要將層板打開就能輕鬆清理!另外連接兩面牆的貓咪獨木橋也是設計師特別為我們訂製的,有看到沙發背牆、電視牆上的木製卡榫嗎?這些其實是獨木橋的卡榫,可以隨時替貓咪更換貓道的路線,太有趣了~

PS獨木橋的麻繩還是設計師花了很多時間自己纏的,真是辛苦啦XD我們超喜歡的!

貓步道有很多不同的設計,除了跳台外還有貓碗,並結合了隔柵的設計,讓空間視覺感更豐富~

我們在客廳的時候,貓咪們也會在貓道上陪著我們,超幸福的!

主臥室設計

主臥室只有拍到貓道的部分,大家將就著看(笑)這是客廳貓道的另一邊,貓咪可以從上方隨時穿越~雖然有時候會半夜被吵醒,但我們也是甘之如飴啦XD

七、過來人的裝修心得

搬進來一年多,目前一切都很滿意,有一個屬於自己的家的感覺真好!看著貓咪們每天都生活得舒適放鬆,貓奴我也感到欣慰,替他們做了這麼多規劃果然沒有白花錢啊~非常謝謝一畝綠設計的姚廷威替我們規劃了人貓都好住的新家,當初相信專業,把一切都交給他們規劃的決定果然很正確,話不多說,我要去撸貓了,貓咪萬歲~

▲偷偷曬一下我們家的貓貓們,看看他們過得多愜意阿~

延伸閱讀:1房+2貓屋,讓工業風變優雅的寵物宅

延伸閱讀:混搭風畸零空間怎解套?這些案例帶你瞧

查看原始文章

更多宅品味相關文章

01

房貸族哀嚎!澳洲 CBA 突襲式調升固定利率 「三字頭」恐成絕響、2 月升息陰影籠罩

商傳媒
Loading...
Loading...
Loading...
Loading...
Loading...
Loading...
Loading...
Loading...
Loading...
Loading...
Loading...
Loading...
Loading...
Loading...
Loading...
Loading...
Loading...
Loading...
Loading...
Loading...
Loading...
Loading...
Loading...
Loading...
Loading...
Loading...
Loading...
Loading...
Loading...
Loading...
Loading...
Loading...
Loading...
Loading...
Loading...
Loading...
Loading...